پرش به محتوا
  • 02122064167
  • تهران - سعادت آباد، بلوار شهید پاکنژاد، بلوار سرو غربی، پلاک 48، ساختمان سفیر، طبقه ششم ، واحد 15
لوگو شرکت معماری پادشید هوپاد
  • صفحه اصلی
  • پروژه ها
    • پروژه های اجرا
    • پروژه های برون مرزی
    • طراحی پلان
    • طراحی داخلی
    • طراحی داخلی فروشگاه و فضا های تجاری
    • پروژه‌های دکوراسیون داخلی مطب پزشکی
    • طراحی روف گاردن
    • طراحی سردر و محوطه
    • طراحی نما ساختمان
    • نقشه اجرایی ساختمان
    • همه پروژه ها
  • تماس با ما
  • درباره ما
  • مجله معماری هوپاد
  • ویدئوهای آموزشی و اجرایی
  • تعرفه خدمات
  • EN
  • صفحه اصلی
  • پروژه ها
    • پروژه های اجرا
    • پروژه های برون مرزی
    • طراحی پلان
    • طراحی داخلی
    • طراحی داخلی فروشگاه و فضا های تجاری
    • پروژه‌های دکوراسیون داخلی مطب پزشکی
    • طراحی روف گاردن
    • طراحی سردر و محوطه
    • طراحی نما ساختمان
    • نقشه اجرایی ساختمان
    • همه پروژه ها
  • تماس با ما
  • درباره ما
  • مجله معماری هوپاد
  • ویدئوهای آموزشی و اجرایی
  • تعرفه خدمات
  • EN
مشاوره رایگان

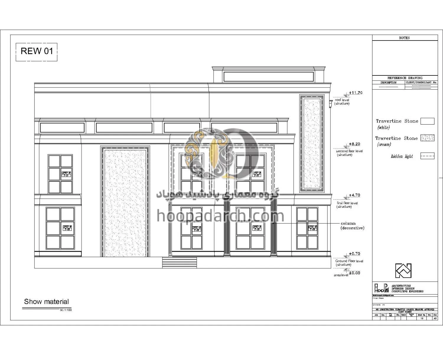
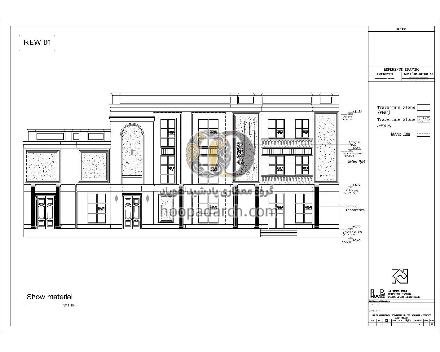
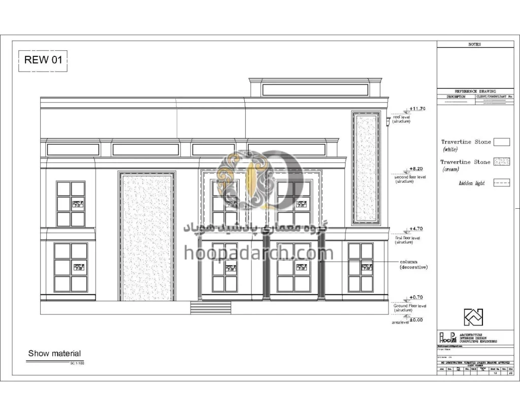
نقشه های اجرایی نمای پروژه ی ۲۰۰۰ متری در بغداد

  • طراحی داخلی اتاق خواب مستر پروژه ۲۰۰۰ متری بغداد آقای مهندس جلیل
  • طراحی داخلی سالن پذیرایی و آشپزخانه پروژه ۲۰۰۰ متری بغداد آقای مهندس جلیل
  • طراحی داخلی نشیمن خصوصی پروژه ۲۰۰۰ متری بغداد آقای مهندس جلیل
  • طراحی نمای پروژه ی ۲۰۰۰ متری در بغداد
راهبری نوشته
→ Portfolio قبل
Portfolio بعد ←
  • تهران - سعادت آباد، بلوار شهید پاکنژاد، بلوار سرو غربی، پلاک 48، ساختمان سفیر، طبقه ششم ، واحد 15
  • 02122064167
  • 09121696399
Telegram Whatsapp Linkedin Instagram
  • طراحی نمای ویلا
  • فضا های درمانی
  • طراحی داخلی آشپزخانه
  • طراحی داخلی نشیمن خصوصی
  • طراحی داخلی نمایشگاه و شو روم
  • طراحی داخلی پارکینگ
  • طراحی داخلی اتاق خواب والدین
  • طراحی داخلی اتاق خواب کودک و نوجوان
  • طراحی داخلی سرویس بهداشتی
  • طراحی داخلی سالن پذیرایی
  • طراحی داخلی لابی
  • طراحی داخلی اتاق کار
  • طراحی داخلی اداری
  • طراحی داخلی باغ تالار
  • طراحی داخلی فضای ورزشی و باشگاه
  • طراحی داخلی فروشگاه و فضا های تجاری
  • طراحی داخلی سالن آرایش و زیبایی
  • طراحی داخلی ویلا
  • طراحی داخلی سونا و استخر
  • طراحی داخلی جواهر فروشی
  • طراحی داخلی کافی شاپ، رستوران و فست فود
  • طراحی داخلی ساختمان پزشکان
  • طراحی داخلی کلینیک زیبایی
  • طراحی داخلی تراس و پاسیو

تمامی حقوق مادی و معنوی این وب سایت متعلق به گروه معماری پادشید هوپاد است. طراحی وب سایت توسط رامونا داده اورنگ.

  • صفحه اصلی
  • پروژه ها
    • پروژه های اجرا
    • پروژه های برون مرزی
    • طراحی پلان
    • طراحی داخلی
    • طراحی داخلی فروشگاه و فضا های تجاری
    • پروژه‌های دکوراسیون داخلی مطب پزشکی
    • طراحی روف گاردن
    • طراحی سردر و محوطه
    • طراحی نما ساختمان
    • نقشه اجرایی ساختمان
    • همه پروژه ها
  • تماس با ما
  • درباره ما
  • مجله معماری هوپاد
  • ویدئوهای آموزشی و اجرایی
  • تعرفه خدمات
  • EN